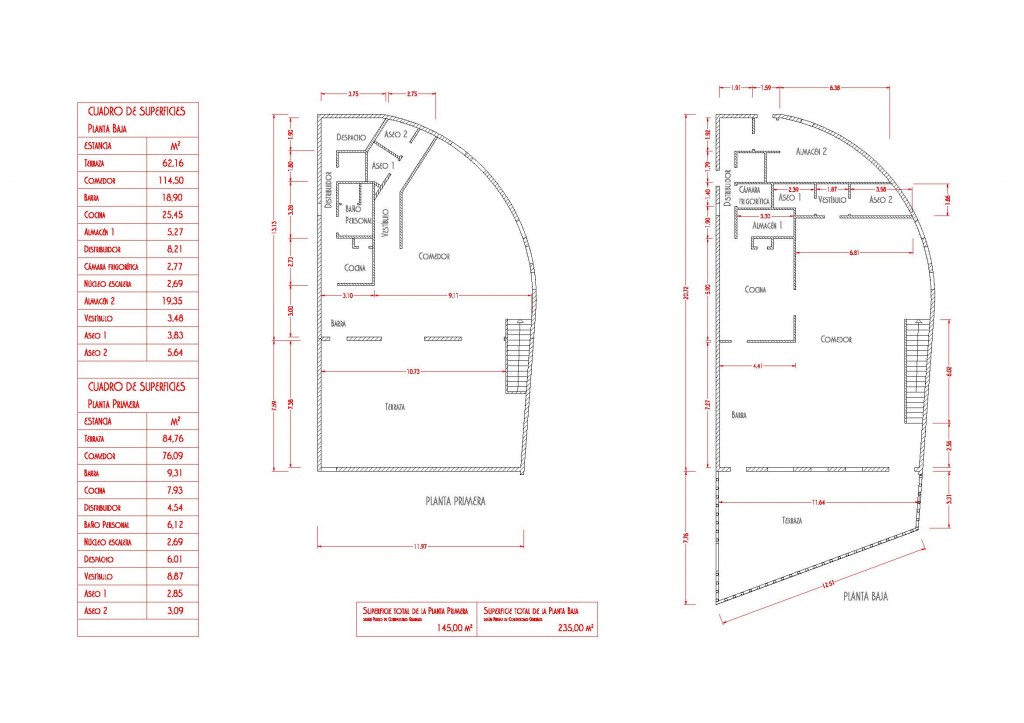
…y por fin se consiguió la concesión y apertura de un Local de Restauración en ámbito portuario como es La Cantina Del Puerto De Alicante

La Cantina Del Puerto

La Cantina Del Puerto

La Cantina Del Puerto

La Cantina Del Puerto

La Cantina Del Puerto

La Cantina Del Puerto

La Cantina Del Puerto

